Zalaszentgrót,Ipari telephely,város központi,7csarnok eladó!

4004 Nyomtatás Ajánlás Facebook

Eladó ingatlan Zalaszentgrót csendes utcájában!

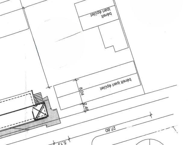
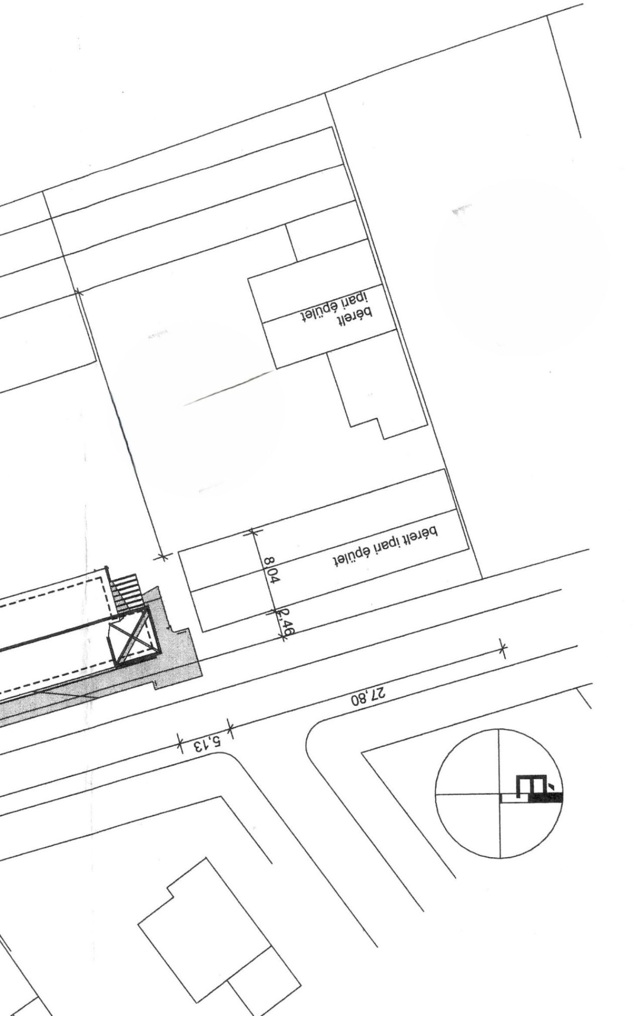
Kihagyhatatlan lehetőség vállalkozók, befektetők és ipari tevékenységre vágyók számára! Zalaszentgrót egyik nyugodt, mégis könnyen megközelíthető részén eladásra kínálunk egy 600 m²-es ipari ingatlant, amely egy 1853 m²-es telken helyezkedik el.

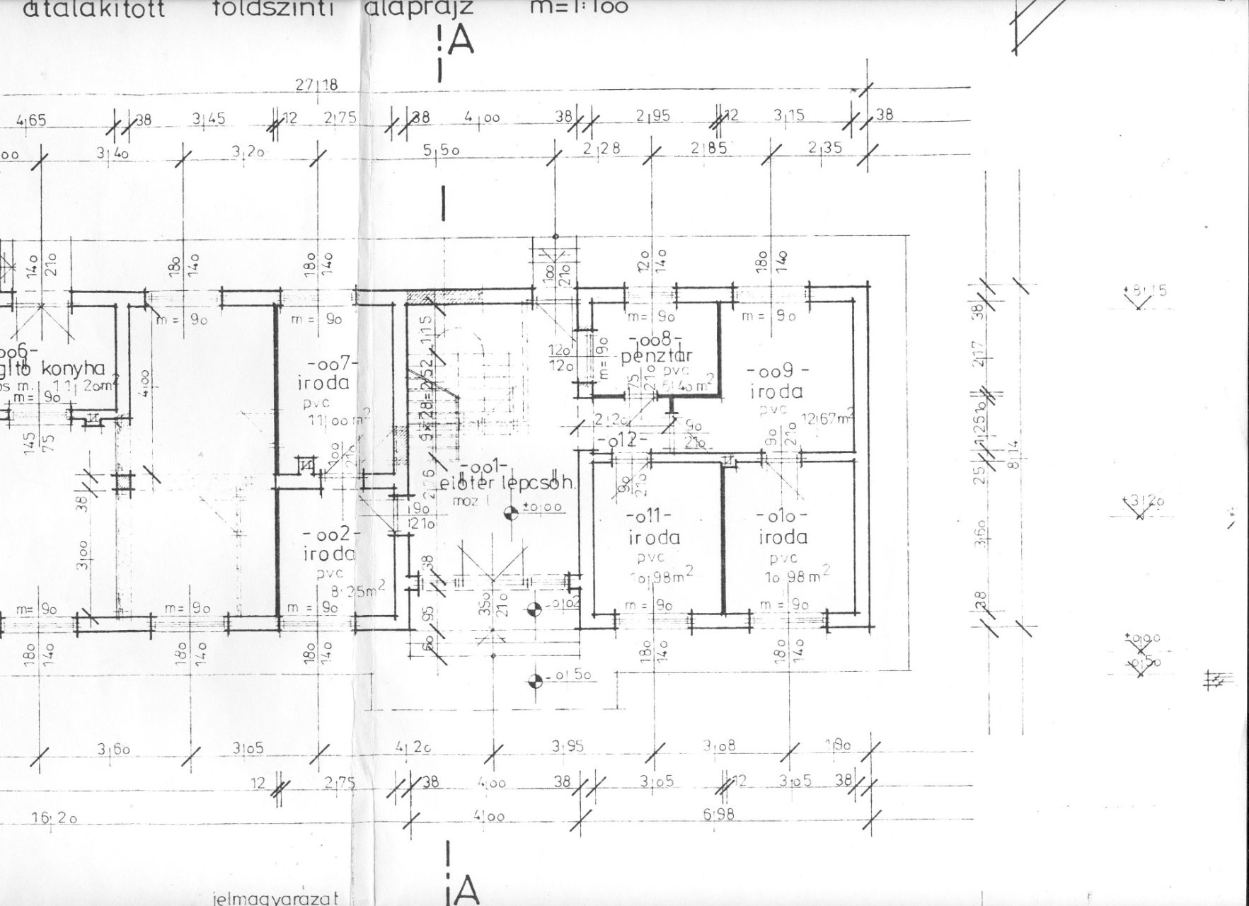
Az ingatlan átlagos állapotú, de számos lehetőséget kínál a jövőbeli tulajdonosának. Az alacsony fenntartási költségek mellett kiemelkedő jellemzője a helynek a háromfázisú áram (3x25A) és az optikai internet kábel jelenléte, sűrített levegő kiépítve, 7db külön bejáratú csarnok (50-150m2) , környezetvédelmi ,és egyéb engedélyekkel, parkolási lehetőségekkel , stb..stb. amelyek kiváló alapot biztosítanak bármilyen ipari vagy üzleti tevékenység számára.

Fűtése: Gázkazán radiátor és konvektor.
Közművek: Víz, Villany (3x25A) Gáz, Csatorna.

A telek több praktikus megoldással is rendelkezik: udvari-utcai gépjárműbeálló, parkoló melléképület, közös és saját tárolóhelyiségek, valamint lehetőség több garázs kialakítására. A melléképület , további lakhatási lehetőséget is biztosíthat.

A kényelmi szempontokat szem előtt tartva az ingatlan külön fürdőszobával és WC-vel rendelkezik. Az elhelyezkedéséből adódóan a környék csendes, ugyanakkor a közlekedés kiváló, így könnyedén elérhető a közeli város központja és a főbb útvonalak is.

Ne hagyja ki ezt a sokrétű lehetőséget, vegye fel velünk a kapcsolatot még ma, és tekintse meg személyesen ezt a remek adottságokkal rendelkező ingatlant Zalaszentgrót városában! Hívjon bártan: +36707775138

Property for sale in a quiet street in Zalaszentgrót!

An unmissable opportunity for entrepreneurs, investors and those looking for industrial activity! In a quiet, yet easily accessible part of Zalaszentgrót, we offer for sale a 600 m² industrial property, which is located on a 1853 m² plot.

The property is in average condition, but offers many opportunities to its future owner. In addition to low maintenance costs, the outstanding feature of the place is the presence of three-phase electricity (3x25A) and optical internet cable, compressed air installed, 7 halls with separate entrances (50-150m2), environmental and other permits, parking facilities, etc., which provide an excellent basis for any industrial or business activity.

Heating: Gas boiler radiator and convector.

Utilities: Water, Electricity (3x25A) Gas, Sewer.

The plot has several practical solutions: courtyard-street parking, parking outbuilding, common and private storage rooms, and the possibility of creating several garages. The outbuilding can also provide additional living space.

Keeping in mind the convenience aspects, the property has a separate bathroom and toilet. Due to its location, the area is quiet, but at the same time the traffic is excellent, so the nearby city center and the main routes are easily accessible.

Don't miss this diverse opportunity, contact us today and personally view this property with great features in the city of Zalaszentgrót! Call us at: +36707775138

Tóth Mihály

Tóth Mihály

6 éve a Városi Ingatlaniroda tagja
Ingatlanértékesítő
Körmend
+36 (70) 777 5138
Észrevétel a hirdetéssel kapcsolatban
Egy ingatlanos naplója