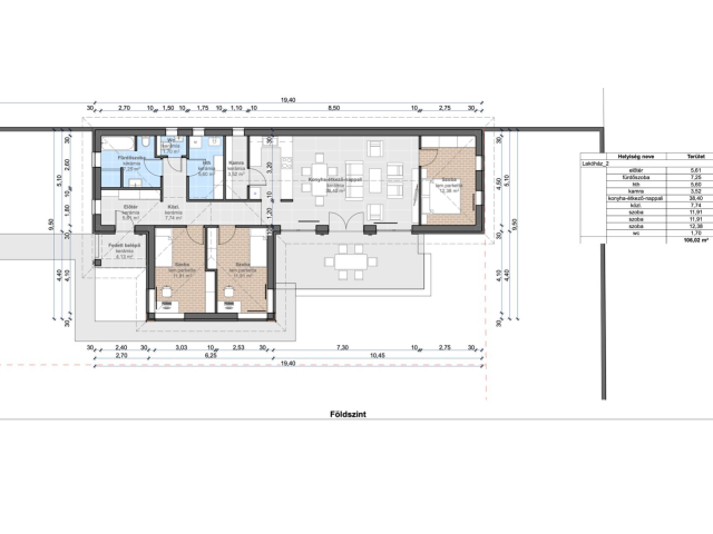
Modern, hőszivattyús, 106 m2-es családi ház népszerű helyen

14840 Nyomtatás Ajánlás Facebook

Új építésű, hőszivattyús, 106 m2-es családi ház népszerű helyen

Békéscsabán, a Békekertek egyik kedvelt, csendes utcájában újonnan épülő, családi házak eladók.
Tekintse meg a 3D-s látványterveket, és álmodja meg otthonát. Olyan lesz, amilyennek Ön szeretné...bruttó 835.000 Ft/m2 áron.

Személyesen is meggyőződhet a magas minőségről, mivel már jónéhány családi ház átadásra került az elmúlt években.
Szívesen megmutatom Önnek a már elkészült referenciákat.

Az építés során az alábbi műszaki specifikációk valósulnak meg, de már a tervezőasztalon figyelembe vesszük az Önök elképzeléseit az esztétikai finomhangolások és igények szerint.

+ Beton sávalap, kb. 50 x 80 cm méretben
+ 1 v 2 sor zsalukő lábazat
+ 10 sor PTH 30 N+F tégla, rajta 15 cm grafitos hőszigetelés
+ 25 x 30 cm méretű vasbeton koszorú
+ Szeglemezes fa rácsostartó alkotta tető és födém
+ Válaszfalak PTH 10N+F
+ Natúr vagy antracit cserépfedés
+ Belső burkolat 3000-5000 Ft/ m2
+ 10 cm hőszigetelés a padlóban
+ 30 cm szálas szigetelés a födémre
+ Födémnél 1 sor mennyezeti gipszkarton
+ Horganyzott acél csatorna, feláras lehet színes alumínium
+ Fehér PVC nyílászárók 6 kamrás, üveg 3 rétegű, feláras a fa
+ Gépészet: AUX hőszivattyú padlófűtéssel + 200 literes hmv tartály és split klímával
+ Villanyszerelés 45 db szerelvény
+ Hemplatt kültéri gipszkarton vakolva, színre festve

A bemutatott belső látványtervek inspirációs céllal, az ingatlan lehetséges kialakítását szemléltetik.
A látványterveken ábrázolt berendezés és felszereltség nem része az ajánlatnak.

Jelenlegi és leendő ügyfeleinknek teljesen díjmentes hitelügyintézést, valamint ingatlan vásárlás-bérbeadás előtti, díjmentes, előzetes ügyvédi tanácsadást kínálunk.

Várom hívását, hogy élőben is megmutathassam a lehetőséget egy boldog élethez.

Üdvözlettel,
Szabó Péter
30/441-9282

Szabó Péter
PRÉMIUM

Szabó Péter

5 éve a Városi Ingatlaniroda tagja
Ingatlanértékesítő
Békéscsaba
+36 (30) 441 9282
Észrevétel a hirdetéssel kapcsolatban
Egy ingatlanos naplója