Gyönyörű családi ház balatoni panorámával

2787 Nyomtatás Ajánlás Facebook

Eladó Siófokon, a népszerű Sóstó városrészen egy kivételes adottságokkal rendelkező újszerű családi ház! Ez a 150 m²-es otthon ideális választás mindazok számára, akik csendes, mégis jól megközelíthető környezetben keresnek házat. Az ingatlan a Balatontól pár száz méterre található egy új lakóparkban, csendes, családbarát környezetben. A siófoki Aranypart és a Szabadisóstói szabadstrand pár perc sétával elérhető. Az M7-es autópálya felhajtó mindössze 1,5 km.

Precízen átgondolt, rendkívül praktikusan megtervezett házról van szó. A tulajdonos saját magának építette. Az ingatlan 2017-ben épült egy 609 m²-es telken, 30 cm Ytong falazattal és 10 cm EPS szigeteléssel. A fűtést gázcirkó kazán biztosítja padlófűtéses hőleadással az egész ház területén. Kiemelkedően alacsony a rezsi, hiszen napelemrendszer és akkumulátoros energiatároló is ki lett építve, így a villanyszámla folyamatosan pluszos. A külső hőszigetelés, a padlófűtés, a napelemrendszer, a korszerű klíma és a háromfázisú áram mind hozzájárulnak a modern, fenntartható működéshez. A nyílászárók műanyagok, redőnnyel és szúnyoghálóval felszereltek.

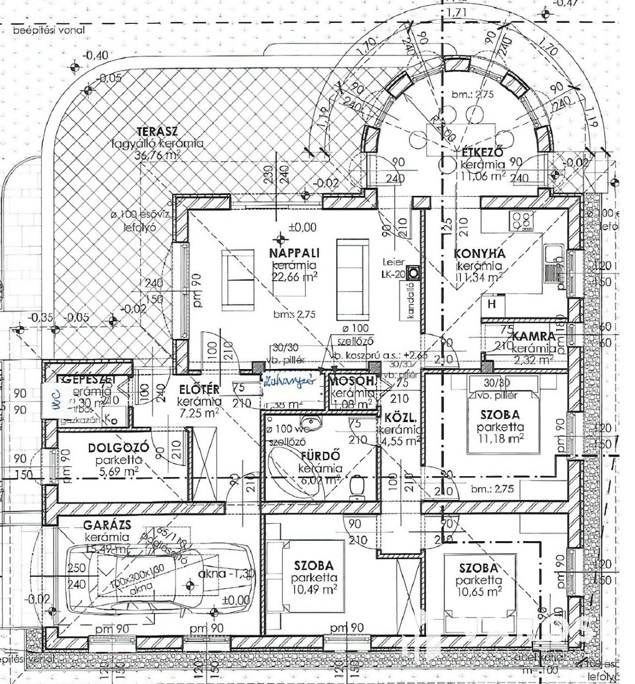
A ház három hálószobával, egy tágas nappalival, étkezővel, konyhával ( a konyhához kapcsolódik egy kamra is), egy fürdőszobával, egy külön tusolóval, gépészeti helységgel (melyben helyet kapott még egy wc), mosókonyhával, és fűtött garázzsal rendelkezik. A pincében kialakításra került egy további 11,18 m²-es szoba is. Az igényesen kialakított konyha prémium anyagok felhasználásával készült, így tökéletes teret kínál a főzéshez. A nappaliból és az étkezőből csodálatos kilátás nyílik a Balatonra, melynek hangulatát és komfortját tovább növeli a kandalló és a klíma.

Az elektromos garázskapu és az udvari gépjárműbeálló lehetőség is a lakók kényelmét szolgálja. A biztonságról riasztórendszer gondoskodik, kivonuló szolgálattal. A házba a legmodernebb optikai kábellel van bekötve az internet, így garantáltan jó internetkapcsolattal rendelkezik, amennyiben a munka vagy a szórakozás azt megkívánja.

Az ingatlan egyik kiemelt értéke a parkosított, gazdagon beültetett kert, ahol nemcsak dísznövények, hanem számos fa, bokor és termő gyümölcsfa is található. A fúrt kút csak tovább növeli a kert fenntartásának hatékonyságát. A házhoz 2 terasz is kapcsolódik, mindkettő balatoni panorámás, melyek kiváló helyszínt biztosítanak kávézáshoz, pihenéshez vagy vendégfogadáshoz. Az egyik terasz nyugati és részben fedett, a másik pedig keleti fekvésű, így bármelyik napszakban találhatunk magunknak egy hangulatos helyet a kikapcsolódásra.

Ez a ház valódi ritkaság Siófok egyik legkedveltebb városrészében – balatoni panorámával, gyönyörű kerttel és kimagasló műszaki tartalommal! További információért és megtekintésért keressen bizalommal!

Vastag Ákos
PRÉMIUM

Vastag Ákos

2 éve a Városi Ingatlaniroda tagja
Ingatlanértékesítő
Siófok
+36 (30) 311 2069
Észrevétel a hirdetéssel kapcsolatban
Egy ingatlanos naplója