Felújított 3 szobás lakás szigetelt társasázban

41 Nyomtatás Ajánlás Facebook

Győr Nádorváros és Adyváros határán, 4 szintes, panelprogramos tömbben eladó ez a remek elosztású, frissen felújított 3 szobás lakás.

Az ingatlan egy 4 emeletes társasház negyedik emeletén található, felettünk már nem zajong senki, továbbá a sportos alkat is garantált...
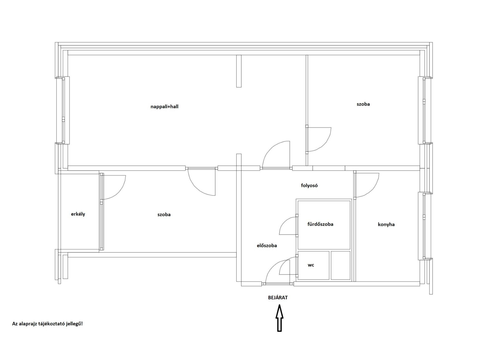
Elosztása szerint: 1 nappali-étkező/hall, 2 szoba, konyha, fürdőszoba, wc, folyosó helyiségekből áll.
A társasház átesett a panelprogramon, külső hőszigetelést kapott, új műanyag nyílászárók kerültek beépítésre 2 rétegű, hőszigetelt üvegezéssel, a radiátorok önálló almérőkkel felszereltek.
A belső tér az elmúlt hónapokban teljes felújításon esett át:
- a villanyvezetékek áthúzásra kerültek, 25A áramerősség
- két hűtő-fűtő klíma is beépítésre került
- a fürdőszoba és a wc teljesen megújult
- a konyha is új, mely "IKEA köntösbe öltözött": Metod konyhabútor 25 év garanciával, fékezett behúzású vasalatokkal
- mosogatógép csatlakozás is kiépítésre került
- a bejárati ajtó és a beltéri ajtók is újak
- erkély szigetelve, frissen festve, wpc burkolat a padlón

Ajánlom fiatal párok részére első lakásnak, vagy családnak 1-2 kisgyermekkel.
Befektetésnek is remek megoldás, hiszen a lakás gyorsan, jó áron kiadható!
Azonnal költözhető lakás, ami valóban felújításra, modernizálásra került, nem csak úgy rámondjuk!

A lépcsőház tiszta, rendezett, kedves, barátságos a lakóközösség.
A közös költség ~9.000,-Ft/hó, a panelprogramnak köszönhetően a fűtési díj is nagyon kedvező.
A közelben minden megtalálható, amire a hétköznapokban szükség lehet: kórház, orvosi rendelő, gyógyszertár, boltok, sportpálya, vásárcsarnok, pékség, óvoda, iskola, Pláza.
A buszmegálló is csak 1 perces sétára van, ahonnan a város minden irányába jó a buszközlekedés.

Ügyfeleim számára az adásvétel során teljeskörű lebonyolítást vállalok, igény esetén díjmentes, bankfüggetlen hiteltanácsadással és ügyintézéssel segítem őket.
A hirdetésben szereplő adatok a tulajdonostól kapott információk alapján kerültek rögzítésre.

Várom hívását, nézzük meg együtt, kevés szép lakás van most a piacon, legyen ez az Öné!
Az ingatlan rugalmasan megtekinthető, akár hétvégén is, hiszen a a kulcs nálam, hívjon bármikor.

Unger-Takács Anikó
+36 (70) 235 7733
unger.aniko@varos.hu

Unger-Takács Anikó
PRÉMIUM

Unger-Takács Anikó

9 éve a Városi Ingatlaniroda tagja
Régióigazgató
Győr
+36 (70) 235 7733
Észrevétel a hirdetéssel kapcsolatban
Egy ingatlanos naplója