Édenkert Szeged népszerű üdülő övezetében

17015 Nyomtatás Ajánlás Facebook

Oázis a szürke hétköznapokban!
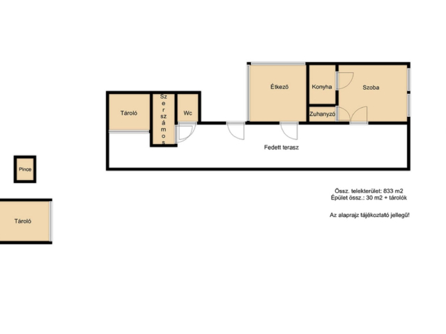
Eladó Szeged népszerű üdülő övezetében, Sziksóstón, egy 833 m2 területű művelés alól kivett zártkerti ingatlan, rajta nyári pihenésre alkalmas faházzal. Az ingatlan, tulajdonosok számára felbecsülhetetlen értékét a gyönyörűen gondozott kert adja, melyben a kordonon, sövénynek nevelt, bőtermő, nemes almafák mellett számtalan más gyümölcsfa, bokor, konyha-és virágoskert is megtalálható. Egy igazi madár csicsergős méhlegelő!
A telken található épület, beton alapon álló zártszelvény vázas, szigetelt faház. Vezetékes víz, villany a házban, gázcsatlakozási lehetőség az utcában, valamint kábeltévé és internet is elérhető. A ház konyhával és zuhanyzóval rendelkezik, külön helyiségben vízöblítéses wc van, de jelenleg fűtés hiányában állandó lakás céljára nem alkalmas. A fő épületet, katonás rendben, felcímkézett dobozokkal bepakolt tárolók és szerszámos helyiség egészíti ki, valamint egy betonozott falú pince és szintén betonozott falú komposztáló.
Ez kérem a nyugalom szigete!
Minden kerti szerszám és egy-két kivétellel minden berendezési tárgy a vételár részét képezi!!!
A közlekedés menetrend szerinti autóbusszal, kerékpárral, kiépített bicikliúton, gépkocsival pedig aszfaltozott, illetve murvás, télen-nyáron jól járható úton lehetséges.
Ha szívesen tovább gondozná ezt az édenkertet hívjon, hogy megmutathassam.

Kérdés vagy időpont egyeztetés esetén keressen bizalommal!
Jéga-Szabó Gábor
0670/427-9422

Jelenlegi és leendő ügyfeleinknek, teljesen díjmentes CSOK és hitelügyintézést, valamint ingatlanvásárlás előtti, díjmentes, előzetes ügyvédi tanácsadást kínálunk.

Jéga-Szabó Gábor

Jéga-Szabó Gábor

Karrierigazgató
Szeged
+36 (70) 427 9422
Észrevétel a hirdetéssel kapcsolatban
Egy ingatlanos naplója