Családi ház Újszeged legjobb részén!

16480 Nyomtatás Ajánlás Facebook

Eladásra kínálom ezt a kiváló adottságokkal rendelkező családi házat Újszeged egyik csendes zsákutcájában.
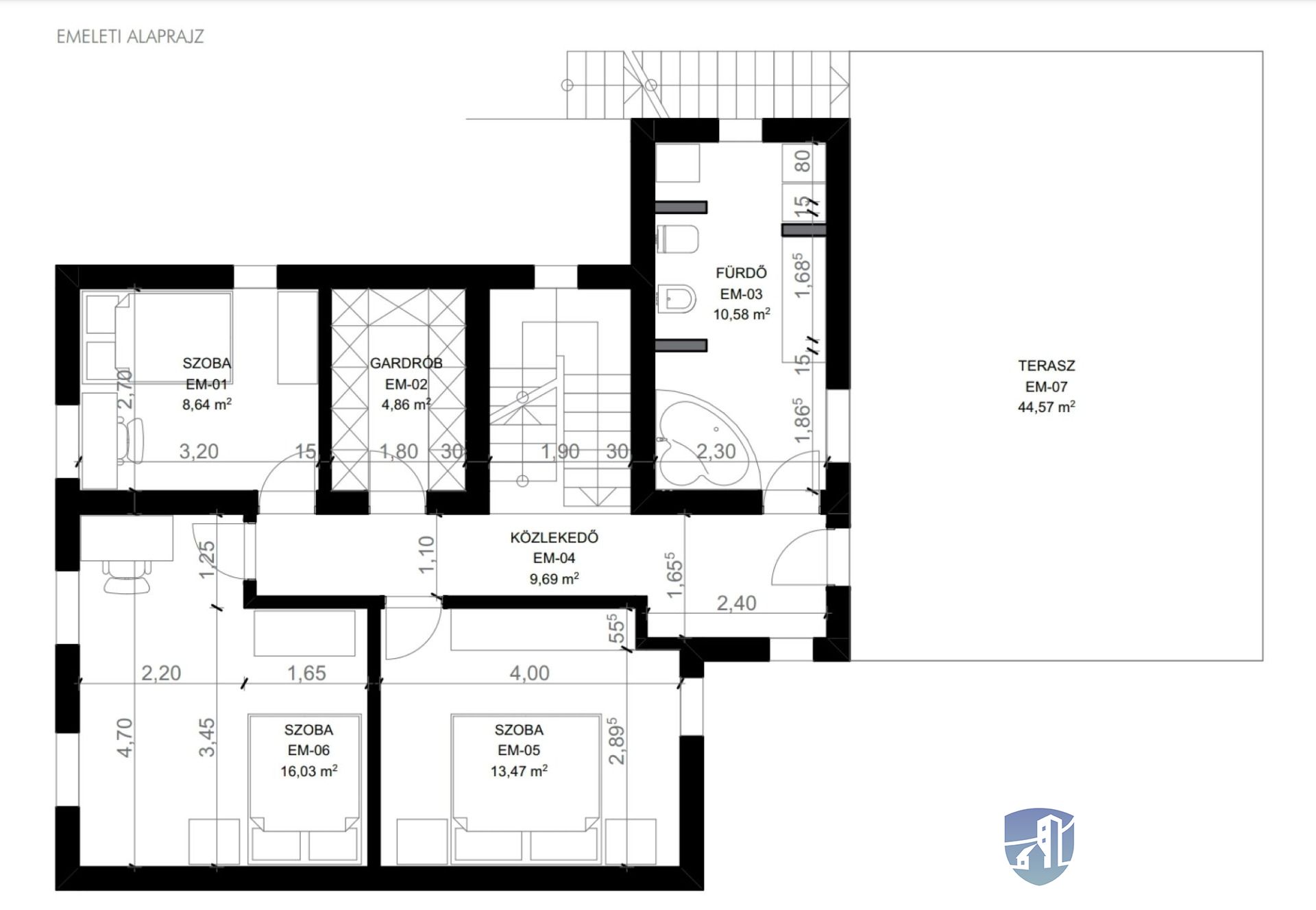
Gyönyörű parkosított udvarral, 2 autós garázzsal, a földszinten található a tágas, világos amerikaikonyhás nappali és étkező kandallóval, fürdőszoba, gardrób helyiség, az emeleten 3 hálószoba, egy tágas fürdőszoba, egy gardrób helyiség és kijárat a tágas tetőteraszra ami a kertből is megközelíthető. Az árban benne vannak a berendezések is.

Ingatlan jellemzői:

Két szintes, 175 m² lakótérrel
763 m² telekméret
3 hálószoba, 1 nappali, 2 fürdőszoba
Terasz és erkély
Elektromos garázskapu
Kerti grillező hely
Udvari gépjárműbeálló lehetőségek
Zöld övezet és parkosított udvar

Kényelmi Extrák:

Padlófűtés
Amerikai konyha
Klíma
Külső hőszigetelés
Kertitároló
Kandalló
Dupla garázs
Elektromos autó töltő
Beépített szekrény és gardrób

Kiváló Elhelyezkedés:
Az ingatlan csendes zsákutcában található, közelben buszmegálló, boltok, edzőterem, bölcsőde, stb.

Amennyiben felkeltette érdeklődését, keressen bizalommal!

Kun-Szabó Zoltán
PRÉMIUM

Kun-Szabó Zoltán

11 éve a Városi Ingatlaniroda tagja
Régióigazgató
Szeged
+36 (20) 935 8828
Észrevétel a hirdetéssel kapcsolatban
Egy ingatlanos naplója