2 generációs ház a belváros közelében

18309 Nyomtatás Ajánlás Facebook

Balaton fővárosában keresne egy valóban remek ár-érték arányú ingatlant? Itt a kiváló lehetőség!

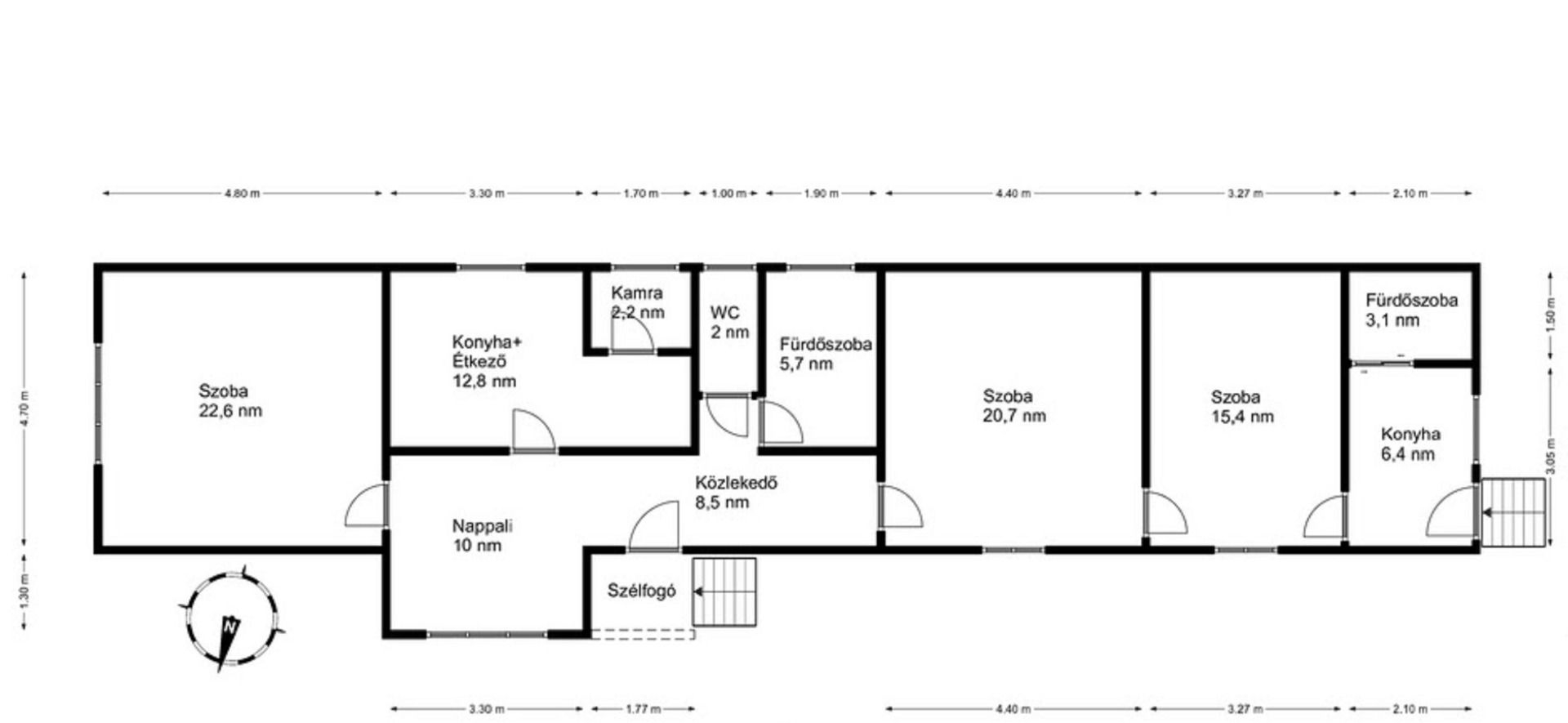
Siófok belvárosához közel, a vízparttól 15 perc sétára vált eladóvá ez a 2 külön lakrészből álló családi ház. Az ingatlan 110 nm hasznos alapterülettel rendelkezik, üdültetésre, de akár 2 generáció együttéléséhez is ideális. A telek mindösszesen 660 nm nagyságú, szépen gondozott. A területen régebbi melléképületek és egy garázs is helyet kapott.

Az lakótér átlagos állapotú, korszerűsítést igényel, ám statikailag remek állapotnak örvend köszönhetően a tulajdonosok gondos munkájának, így remek alapot képezhet egy új, modern élettér kialakításához. A tető közel 15 évvel ezelőtt teljes felújításon esett át, valamint ekkor került kicserélésre a főbejárati ajtó is. Az ingatlan minden közművel rendelkezik, a helyiségek fűtéséről konvektorok gondoskodnak. A családi ház helyiségei: 3 teljes értékű szoba, 2 fürdőszoba, 2 konyha, közlekedő, wc, kamra, nappali. Az ingatlan a benne lévő bútorzattal együtt kerül értékesítésre!

Akár befektetésként vásárolna, akár egy tágas, jó elrendezésű lakóingatlant szeretne kialakítani, ezt érdemes személyesen is megtekintenie, és felfedezni a benne rejlő lehetőségeket. Megtekintéshez telefonos egyeztetés szükséges!

Stolcz Gábor prémium ingatlanértékesítő ( +36 30 5518808)

Stolcz Gábor
PRÉMIUM

Stolcz Gábor

9 éve a Városi Ingatlaniroda tagja
Ingatlanértékesítő
Letenye
+36 (30) 551 8808
Észrevétel a hirdetéssel kapcsolatban
Egy ingatlanos naplója